« Stanovanje
objavljeno prije 17 godina i 11 mjeseci

Istaknite prostor igrom podnih obloga

Kako urediti prizemlje i kat u obiteljskoj kući površine 300 četvornih metara, a ne pretrpati je nepotrebnim stvarima

Fotografija vijesti

Poštovani,
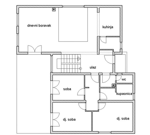
Radi se o obiteljskoj kući, novogradnji. Kuća je površine cca 300 m2, na dvije etaže. Prva zamisao je bila da je lijevo od ulaza u kuću ‘mirniji’ dio kuće i u prizemlju i na katu, dok je desni dio kuće zamišljen kao dnevni i radni.

Sada je problem to urediti, a da se ne prekrca sa nepotrebnim namještajem, iskoristiti utore za ugradbene ormare i sl...? Molimo Vas da nam pošaljete prijedlog uređenja prostora u kojem trenutno nema ništa (osim kamina)?

U koncepciji kuće, kao što je Vaša, važno je prostor opremiti minimalistički, kako bi se zadržala njegova osnovna ideja, a to je prozračnost, povezanost prostora i komocija.

U hodnike i sobe smjestite što više ormara, kako biste oslobodili dnevnu zonu i zonu biblioteke za smještaj samo nužnih sadržaja. Smještaj većeg broja elemenata namještaja stvorili bi osjećaj nereda, jer su stepenište i galerija sasvim dovoljni elementi za naglašavanje prostora.

Uređenje prostora treba biti usmjereno ka isticanju postojećih elemenata u prostoru, koji su vrlo atraktivni.

U toj će ideji podna obloga biti vrlo važan detalj, jer je podna površina velika i povezana. Predlažemo upotrebu vrlo atraktivnog bambusovog parketa, koji će svojom teksturom i bojom dati vrlo ugodno ozračje.

Kako biste dodatno naglasili zonu galerije, u koju smo smjestili blagovaonicu, predlažemo upotrebu svijetle nijanse bambusovog parketa.

Na ovaj će način podna obloga postati preslika događanja na stopu, pa će svijetli parket dodatno naglasiti vertikalnu dimenziju galerije. 

Ovom ćete igrom i naglasiti pojedine funkcionalne zone u prostoru na nenametljiv način i stvoriti dinamiku u prostoru.Budući da je parket u tamnijoj boji (što prostor svojom dimenzijom dozvoljava), predlažemo sjedeću garnituru u svijetlijoj boji, kao i tepih.

Klub stolić iskombinirajte sa staklom. U blagovaonicu smjestite stakleni stol sa svijetlim stolicama, kako bi se naglasila transparentnost ovog prostora.

Kuhinju riješite također minimalistički, kombinacijom tamne baze i staklenih visećih elemenata.

Otok ispunite staklom u boji, koje se uklapa sa kuhinjom.

Koristite svijetle boje za zidove, u paleti od bijele do bež, a strop obojajte bojom nešto tamnijom od boje zidova, kako biste naglasili galeriju.

U biblioteku smjestite manju sjedeću garnituru (model) i komotnu ležaljku za čitanje.

Na pitanja čitatelja odgovaraju arhitekti portala Interijernet.com.

06.05.2008. 01:50:25
    
Novi komentar
nužno
nužno

skrolaj na vrh