« Stanovanje
objavljeno prije 17 godina i 10 mjeseci

Kako od jako malog stana napraviti veliki

Koristite svijetle boje zidova i podova radi vizualnog povećanja prostora

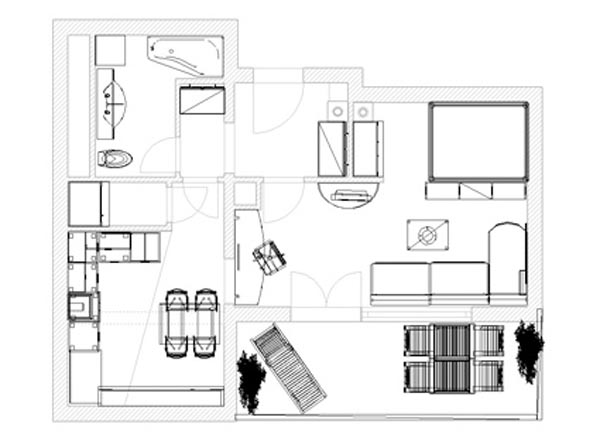
Postojeće stanje
Postojeće stanje
Više o

uređenje stana

Poštovani!
Šaljemo vam u privitku nacrt stana i tražimo savjet za uređenje, uz molbu za pomoć. Stan je u novogradnji i tako će izgledati kad bude uskoro završen. Zidovi su završeni. Nas je dvoje i imamo pedeset godina. Živimo u Karlovcu.
Hvala najljepša na pomoći.
M. i N

Poštovani!
Tlocrt vašeg stana idealan je za prikaz kako od malog stana, tlocrtnim rasporedom namještaja stvoriti što više funkcionalnih jedinica, kako bi svakodnevni život bio što bogatiji.
Budući da spavaći trakt nije izdvojen kao cjelina, a stan je za dvije osobe, predlažemo da ga pregradite transparentnom policom od dnevne zone. Na taj ćete način izbjeći dijeljenje prostora i ostaviti dojam prostornosti, ali ćete ipak dobiti nešto intimniju zonu za odmor.

Budući da je središnji dio stana ispresijecan komunikacijama (što može biti atraktivno u većim stanovima, ali u vašem slučaju je neiskorištavanje prostora), predlažemo da otvor između kuhinje i dnevnog boravka zatvorite do visine 90 centimetara i ostavite ‘prozor’ prema dnevnom boravku. Na taj ćete način zadržati ideju povezanosti prostora, ali ćete vrlo dugu zidnu plohu moći iskoristiti za smještaj radnog stola. Ako se pojavi potreba, moguće je u tu zonu smjestiti ugradbeni ormar, čime ćete izgubiti vizualnu povezanost prostora, ali dobiti dodatni garderobni prostor.

Prema presjecima vidimo da je veći dio kuhinje smješten ispod kosog krova, što bitno smanjuje njenu iskoristivost. Položaj ostave je takav da zauzima najkvalitetniji dio potencijalne kuhinje, stoga ćete se morati pomiriti s činjenicom da će kuhinja biti puno manje iskoristiva, nego što bi bila da je ostava zamišljena kao ventilirani ormar ispod kosog krova. Na sami rub kosine smjestite stol za blagovanje, kako bi kosina bila što bolje iskorištena, a uz sami zid (h= 100 centimetara) smjestite ugradbeni ormar, do visine krovnog prozora.

Koristite svijetle boje zidova i podova, radi vizualnog povećanja prostora, a zidove ukrasite tek pokojom slikom. Sve ‘kutke’ stana iskoristite za smještaj dodatnih ormara, za razliku od dnevnog dijela  u koji smjestite samo policu za TV. Kutna garnitura, kao i stolice koje ćete smjestiti u stan, trebali bi biti što manjeg formata, kako ne bi opteretili prostor dužinom, širinom, ali i visinom.
Pravilnim odabirom, prostor će izgledati puno veći nego što to zaista jest. Lođu uredite kao dodatni prostor za blagovanje i odmor, uz puno zelenila, kako biste njenu relativno veliku kvadraturu zaista koristili kao prostor za boravak, a ne nužno spremište.

Na pitanja čitatelja odgovaraju arhitekti portala Interijernet.com.

02.06.2008. 21:23:12
    
Novi komentar
nužno
nužno

skrolaj na vrh