Povežite prostor uz minimalne troškove
Mladi bračni par bez djece želi znati kako najbolje iskoristiti prostor dnevne sobe od 30 četvornih metara
Poštovani,
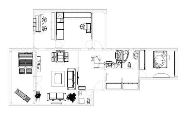
Mi smo mladi par bez djece u stanu velikom 108 četvornih metara, izgrađenom prije 25 godina. Stan je smješten u prizemlju zgrade na zapadnom dijelu grada, orijentacije istok-zapad. Želimo zadržati dvije spavaće sobe (našu i dječju), radnu sobu koja nam je neophodna, odvojeni WC te iskoristiti prostor dnevne sobe od 30 četvornih metara. Jedan od najvećih problema je kuhinja s blagovaonicom jer ne znamo kako bolje iskoristiti taj ne baš mali prostor. Stan ima verandu i loggiu. Veranda je ostakljena, a krov je također staklen, s metalnom rešetkom za zaštitu od inja. I verandu i loggiu želimo zadržati jer nemamo ostavu, a u planu je i mali zimski vrt na verandi.
U zahtjevu koji ste naveli, najveći problem je nedostatak prirodnog svjetla u vašem stanu. Kvadratura stana, kao i raspored prostorija sasvim su dovoljni za Vaše sadašnje i buduće potrebe. Uz minimalne preinake, dajemo Vam prijedlog modernog i ugodnog stanovanja pri čemu je prodor svjetlosti maksimalan. U ulaznom prostoru stana zatvorili smo komunikaciju prema dnevnom boravku i postavili otvor s visinom parapeta od 90 cm, kako bismo stvorili vizualnu komunikaciju s dnevnim traktom i povećali prostor, a također omogućili i prodor prirodnog svjetla s verande. Na ovaj je način stvorena i longitudinalna poveznica cijelog stana, što omogućuje prodor svjetlosti i iz spavaće sobe. Buduću da postojeća količina svjetlosti ipak nije dovoljna, jer je veranda natkrivena, predlažemo ugradnju fluo rasvjete u otvor, s gornje strane. Ova vrsta svjetlosti najsličnija je dnevnoj, pa ćete njezinim korištenjem u ovoj zoni pojačati dojam dnevnog svjetla tijekom dana. Otvor možete dekorirati ukrasnim predmetom.

Glavni ulaz u dnevni trakt premješten je u zonu blagovaonice, kako bi se dobio funkcionalniji dnevni boravak, koji je bio ispresijecan komunikacijama pa samim time i neiskoristiv. Na taj smo način iskoristili već postojeću komunikaciju prema dječjoj sobi. Predlažemo da uz kuhinju smjestite manji stol za ‘priručno jelo’, a blagovaonicu premjestite u zonu dnevnog boravka, jer prostor to dopušta. Zadržana je veza kuhinje i blagovaonice. Predlažemo upotrebu svijetlih, ali toplih boja u interijeru (narančasta i bež ili svijetložuta..) kako bi prostor bio što ugodniji. Na ovaj ćete način djelomično nadomjestiti nedostatak svjetla. Upotrebom hladnih boja u relativno tamnom prostoru, ukupni će dojam biti vrlo sumoran. Predlažemo i upotrebu zelenila. Budući da je kuhinja prostorno izdvojena od dnevnog trakta, možete upotrijebiti boje koje će biti potpuno drukčije od kompozicije dnevnog trakta, ali ipak koristite svjetlije boje, budući da je prostor relativno uzak.
Na pitanja čitatelja odgovaraju arhitekti portala Interijernet.com
Novi komentar