« Stanovanje
objavljeno prije 17 godina i 11 mjeseci
Savjeti

Uklonite suvišne komunikacije

Racionalnim uklanjanjem komunikacijskih zona oslobodit ćete dodatni prostor za vas i ukućane

Fotografija vijesti
Više o

interijer

,

uređenje interijera

,

Interijernet.com

Poštovani,
Imamo trosoban stan od 77 četvornih metara koji bi trebao zadovoljavati potrebe peteročlane obitelji s tri tinejdžerice (koje sada imaju zajedničku sobu). Budući da u stanu ima dosta vratiju, prostor nije lako iskoristiv (mnoga smo vrata poskidali jer volimo otvoreni prostor). Preuredili bismo ga tako da ima dovoljno mjesta za sve i trebao bi se sastojati od kuhinje, blagovaonice, dnevne sobe, spavaće sobe, dječje sobe (možda i dvije), kupaonice s WC-om (to nam sada fali)  i zasebnog WC-a.
Unaprijed vam zahvaljujem na odgovoru i pomoći, te nestrpljivo iščekujem vaše savjete.
Z.S.

Poštovana,
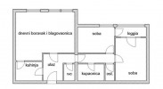
Tlocrtna dispozicija stana je dobra, ali za manji broj ukućana, stoga je u vašem domu nužno napraviti promjene koje će stvoriti više kvalitetnog prostora za vašu obitelj.

Dodatni kuhinjski prostor

Spavaći trak je u novoj dispoziciji zadržao isti tlocrtni raspored, ali smo sobe prenamijenili u dvije dječje - veća soba za dvoje djece i manja za još jedno. Grupirali smo prostor za vašu djecu, a dodatna pogodnost je i zajednička lođa koja povezuje dvije sobe. Dječje sobe izvedite u živim bojama uz postavu tepisona po cijelom podu.

Vašu spavaću sobu premjestili smo na sam početak dnevne zone, koja je dovoljno velika da i nakon intervencije zadrži funkcionalnost i komociju, ali uz pažljiv raspored pojedinih grupa. U spavaćoj sobi je razdvojena garderobna i spavaća zona, kako bi prostor bio minimalan, ali ipak funkcionalan. Predlažemo ugradbene ormare.

Ovako oblikovana spavaća soba otvara prostor za smještaj blagovaonice u blizinu kuhinje, a na početak dnevne zone, što je idealno. Vaša je kuhinja  male površine, a uz  dva smjera komunikacije, iskoristivost prostora svedana je na minimum.

Predlažemo da zazidate  otvor vrata iz kuhinje prema dnevnom boravku i stvorite dodatni kuhinjski prostor, a kuhinju vizualno povežete otvorom u obliku elipse prema dnevnom boravku, uz koji je smještena staklena konzumna ploha. Prostor ćete na ovaj način vizualno povećati, a komunikacija kuhinja-hodnik - dnevna zona sasvim je funkcionalna.

Predlažemo smještaj kutne garniture u dnevnu zonu s manjom komodom za televizor i nešto zelenila. Klub-stolić i stol u blagovaonici izvedite u kombinaciji stakla i metala. Pod predlažemo u svijetloj boji, kako bi se površina doimala što većom, kao i većinu elemenata namještaja.
U blagovaonici predlažemo upotrebu tapete u apstraktnom cvjetnom motivu.

Moderni lusteri

Zonu blagovaonice i dnevnog boravka dodatno naglasite modernim lusterima. Zavjese izvedite u prozračnim, nježnim bojama, kako biste naglasili profinjenost prostora.

Na pitanja čitatelja  odgovaraju arhitekti portala Interijernet.com 

27.05.2008. 03:18:11
    
Novi komentar
nužno
nužno

skrolaj na vrh