« Stanovanje
objavljeno prije 17 godina i 10 mjeseci

Funkcionalan stan za četveročlanu obitelj

Za osjećaj ugode u bilo kojoj prostoriji važan je raspored namještaja, odabir boja, rasvjeta i zelenilo

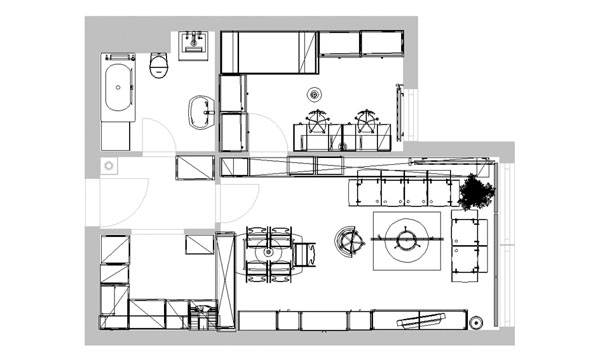
Postojeće stanje
Postojeće stanje
Više o

uređenje stana

Poštovani,
Šaljem vam tlocrt novog stana kojega je potrebno urediti za četveročlanu obitelj (dvoje ženske djece u školskoj dobi). U 45 m2 imamo jako puno potreba pa molimo za stručnu pomoć.

Potreba za uređenjem stana površine 40-50 četvronih metara za četveročlanu obitelj postaje sve češća.  Pravilnom organizacijom osnovnih funkcionalnih grupa moguće je zadovoljiti potrebe takvih obitelji, ali je pri tome važno da ukupan estetski dojam bude što bolji. I članovi obitelji i prijatelji  će se puno bolje osjećati u prostoru koji je, iako mali površinom, ugodan za boravak. Za ovakav ugođaj važan je raspored namještaja, boje u prostoru, rasvjeta i zelenilo.

Prostor kuhinje je dovoljan da se ostvari potreban minimum funkcionalnosti, a dodatnu komociju ćete postići postavljanjem šanka koji će povećati radni prostor.  Kako bi prostor zadržao poveznicu kuhinje i dnevnog trakta, uz šank postavite i blagovaonski stol. Na taj će način veza sa kuhinjom  preko pulta biti optimalna, a stvorit će se višak prostora u dnevnom boravku za smještaj neophodnog namještaja. Predlažemo upotrebu trosjeda  na razvlačenje i dvosjeda, kako bi staklena stijena došla što više do izražaja, a transparentnost naglasite i odabirom staklenog blagovaonskog i klub stolića.

Uz vrata koja vode prema dječjoj sobi smjestite dva ormara,  iznad kojih je horizontalni potez elemenata, kako bi prostor bio maksimalno iskorišten. Horizontalne police obavezno izvedite u bijeloj boji kako bi se dobio dojam ‘lebdenja’ u prostoru. Elemente na suprotnoj strani zida izvedite u kombinaciji dvije visine te izmjeni punih i staklenih zona, kako bi se vizualno smanjio broj elemenata u prostoru, što je za manje površine jako važno.

Predlažemo kombinaciju bijele, crne i crvene boje, a na zidu iza garniture upotrebu tapete. Osim centralne rasvjete koristite i samostojeće lampe. U dječju sobu smjestite krevete na kat, ormare i dva radna stola na način da prirodno svijetlo dolazi sa lijeve strane. Predlažemo kombinaciju svijetloplave i pink boje.

23.06.2008. 23:08:32
    
Razgovor RSS komentara novi komentar ↓
  1. avatar
    Ivona
    04.04.2009. 13:35
    zanima me kako da posaljem svoj tlocrt kako bi ste mi pomogli oko organizacije...
  2. avatar
    Marijana
    10.02.2019. 15:59
    Poštovanišaljem vam svoj tlocrt stana od 49 kvadrata tj st.prostora 47 kvadrata pa vas molim ideju za urediti tako mali prostor za 4 člana mlade obitelji..hvala..LP
Novi komentar
nužno
nužno

skrolaj na vrh